
Livraison | Phase 1 en 2024 – Phase 2 à venir en 2026
MOA | Académie des Beaux-Arts
Coût | 3,1M € HT
Architectes | Jennifer Didelon architecture et patrimoine (mandataire) et Atelier MLH (associée)
BE TCE | GEC
Photographies : © Daniele Rocco
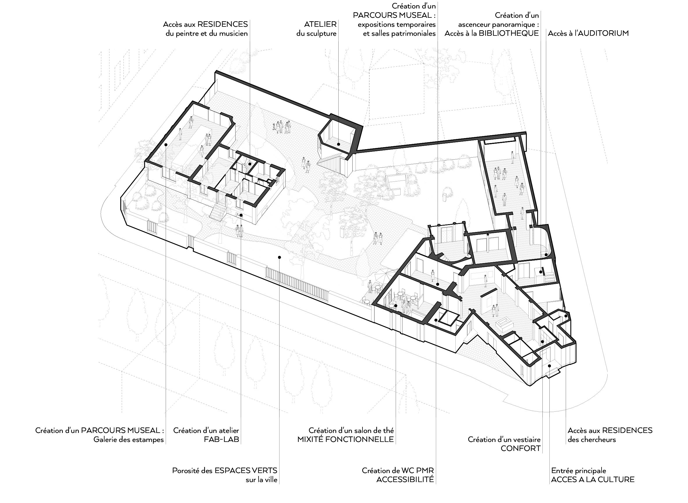
Dans un jardin agréable et arboré, les bâtiments de style premier empire et les ajouts des années 1980 sont aujourd’hui méconnus, car tournés sur eux-mêmes.
Nous avons remporté deux appels d’offres (phases 1&2) ce qui nous amène à la réalisation d’un projet d’ensemble pour ce site aux fonctions imbriquées : espaces d’accueil et d’exposition permanentes (collection d’estampes de Paul Marmottan) et temporaires, bibliothèque spécialisée, salon de thé, résidences d’artistes et de chercheurs, auditorium. Cette singularité en fait un lieu hybride et vivant que nous cherchons à ouvrir sur la ville.
La première phase a consisté en une transformation de la villa afin d’accueillir le public dans la galerie tout en préservant l’intimité des résidences d’artistes créées pour un plasticien et un musicien, à proximité de l’ancienne remise transformée pour un sculpteur. Les aménagements et le mobilier sur mesure répondront aux besoins spécifiques de chaque artiste (acoustique, éclairage…), tout en s’inscrivant avec soin dans le contexte classé.
Pour la seconde phase, nous travaillons à la qualité de l’accueil, à la lisibilité du site et à la création d’un parcours muséal entre pièces patrimoniales et expositions temporaires, notamment issues du Musée Marmottan Monet.













